top of page
LIBRARY & ARCHIVES NT
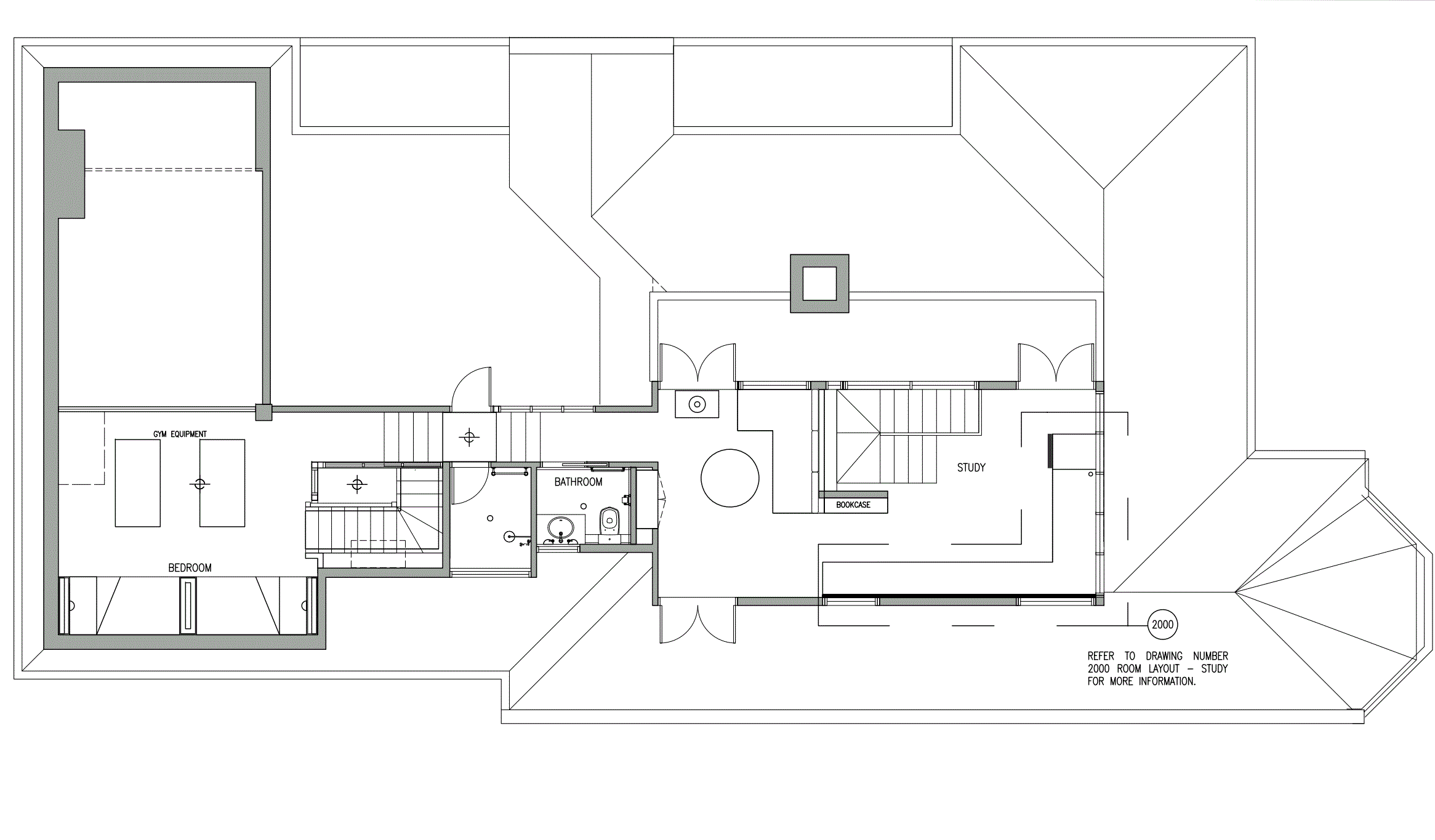
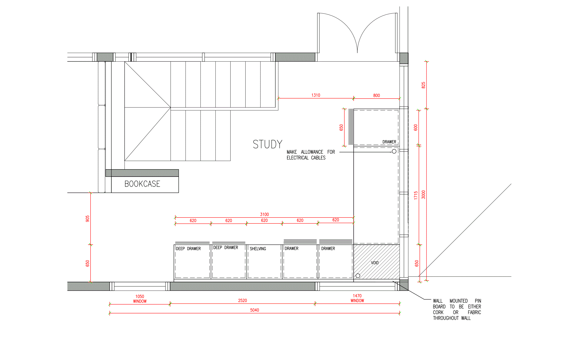
LEVEL 2
PROJECT: Commercial refurbishment & fit-out
CLIENT: Higher Education Facility - Library & Archives NT
​
OBJECTIVE
To create a hub that is dynamic to catch the engagement of Tafe students to enrol into the University of Canberra. There will be two areas that will be designed:
​
CONCEPT DESIGN
CLIENT REPORT
To create a
DIPLOMA OF INTERIOR DESIGN: A BODY OF WORKS
DIPLOMA OF INTERIOR DESIGN: A BODY OF WORKS
bottom of page






